Follow us
建築工程
『紅磚藝術之美』台灣建築工藝
2024.12.02

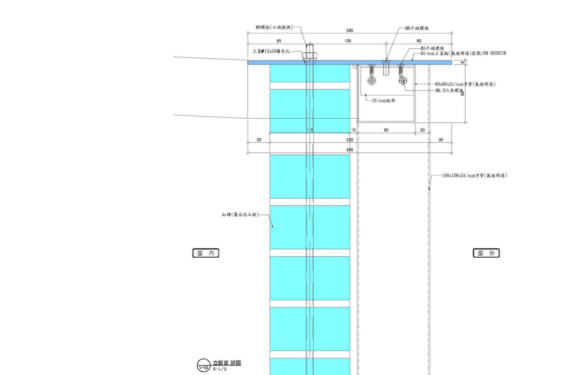
恆笙建築完成位於台中-烏日的「昕昕裏山」社區,本案藝術磚牆為建築一大特色,

由33,187塊的紅磚疊砌而成,從紅磚材料選擇、圖面檢討,一直到匠人嚴選逐步發展,

最終我們採用〈孔洞清水磚〉搭配的金屬螺桿,並加入金屬框架結構設計,

讓台灣建築磚牆藝術再次體現,亦更加穩固。

 

#恆笙建築 #hengsheng #建築工程力